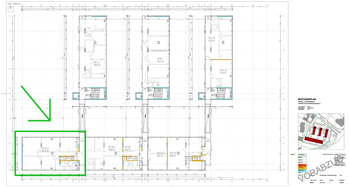
VDZ Vöcklabruck – TOP 26 Top 26 D 3.3 | 3. OG | 173,44 m²Teilvermietung möglichEigener ZugangCoworking Space – flexible, teilbare Arbeitsbereiche +43 6645325600 Anfrage per Mail Anfrage AllgemeinVornameNachnameE-MailTelefonnummerNachricht Ich bin mit der Datenschutzerklärung von Regau Vital GmbH einverstanden, dass diese Website meine eingereichten Informationen speichert, damit sie auf meine Anfrage antworten können. Die mit (*) gekennzeichneten Felder müssen ausgefüllt werden.Anfrage absenden Date: 2026 Category: GewerbeImmobilienVöcklabruck Tags: Immobilien